Nelisse.nl maakt gebruik van cookies.

We gebruiken cookies om de website naar behoren te laten werken en om onze website te analyseren. Dit gebeurt anoniem. U gaat akkoord met onze cookies als u onze website blijft gebruiken. Op onze website vindt u ook ons privacybeleid en cookieverklaring.

Hertog Filipslaan 9
Den Haag (Kraayenstein en de Uithof)

Koopsom  € 1.160.000 v.o.n.

Interesse?

Wilt u meer informatie over deze woning?
Bel (070) 350 14 00 of stuur een e-mail naar info@nelisse.nl

Omschrijving

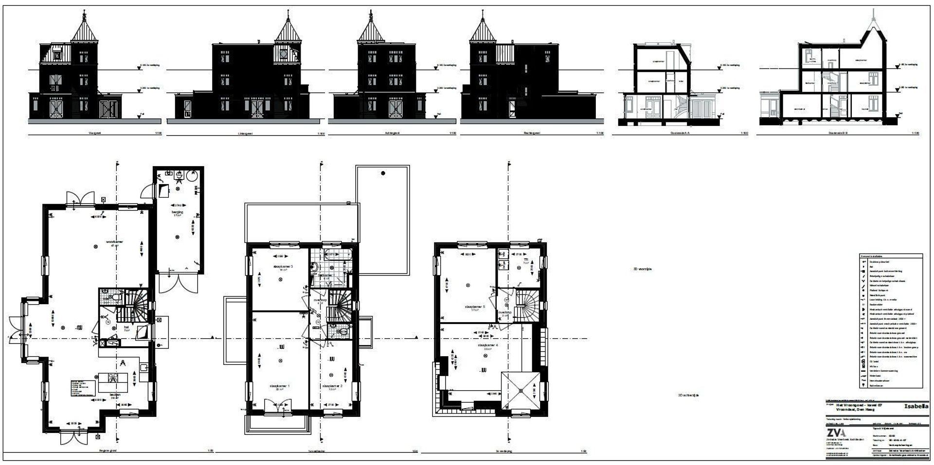
Schitterende vrijstaande villa, type Isabella, met garage/berging. In het villa gedeelte van Vroondaal en aan het water gelegen. Het betreft fase II van Vroongoed, kavel 7.

De laatste vier villa's worden nu verkocht en hoogstwaarschijnlijk in het 4e kwartaal van 2021 wordt met de bouw aangevangen, de bouwtijd bedraagt ongeveer één jaar.

Type Isabella, villa met het "torentje" en andere accenten.
Indeling; entree, ruime hal 5m2 met toilet met fontein; deur naar grote begane grond met een living van 42m2; een zij- erker met openslaande deuren en een keukenruimte van 16m2.
1e etage: overloop met toilet met fontein; 3 slaapkamers van resp. 22, 14 en 12m2; badkamer 6m2 met daglicht en douche en wastafel.
2e etage: ruime overloop met daglicht; 2 kamers van 14 en 12m2 en een afzonderlijke wasmachine-/drogerruimte.

In tegenstelling tot de kadastrale gegevens is de kavel 619 m² groot.

De villa's moeten nog gebouwd worden, de items gemeld in de meer- en minderwerklijst zijn derhalve nog individueel te kiezen. Bouw met "Woningborg-garantie", de villa's zijn gelegen op eigen grond.

Kenmerken

Koopsom
€ 1.160.000 v.o.n.
Status
Verkocht
Oplevering
In overleg
Soort woonhuis
Villa, Vrijstaande woning
Soort bouw
Nieuwbouw
Bouwjaar
2022
Onderhoud binnen
Uitstekend
Onderhoud buiten
Uitstekend
Woonoppervlakte
228m²
Perceeloppervlakte
588m²
Overig oppervlakte
17m²
Inhoud
730m³
Aantal kamers
7
Aantal slaapkamers
5
Verdiepingen
3
Isolatie
Volledig geisoleerd
Warm water
Elektrische boiler eigendom
Verwarming
Vloerverwarming geheel, Warmte Terugwininstallatie
Ligging
Aan het water, Aan rustige weg, In woonwijk, In bosrijke omgeving
Tuin
Tuin rondom
Soort garage
Inpandig

Locatie

[ { "lat": 52.0447864, "lng": 4.2272595, "heading": 0, "pitch": 0 } ]
[{"featureType":"water","stylers":[{"visibility":"on"},{"lightness":20},{"saturation":-42},{"hue":"#00ccff"}]},{"featureType":"landscape.man_made","elementType":"geometry","stylers":[{"visibility":"on"},{"saturation":-99},{"lightness":51}]},{"featureType":"road.arterial","elementType":"geometry","stylers":[{"saturation":-98},{"lightness":35}]},{"featureType":"road.highway","elementType":"geometry","stylers":[{"saturation":-95},{"lightness":-10},{"gamma":2.17}]},{"featureType":"poi.park","stylers":[{"visibility":"on"},{"lightness":30},{"saturation":-50},{"hue":"#a1ff00"}]},{"featureType":"poi.school","elementType":"geometry","stylers":[{"saturation":-25},{"lightness":12},{"hue":"#ffdd00"}]},{"featureType":"road.local","stylers":[{"saturation":-100},{"lightness":15}]},{"featureType":"administrative.neighborhood","stylers":[{"visibility":"on"},{"saturation":-100},{"lightness":35}]},{"featureType":"poi.attraction","elementType":"labels","stylers":[{"lightness":15},{"hue":"#ff005d"},{"visibility":"simplified"},{"saturation":-100}]},{"featureType":"road.arterial","elementType":"labels","stylers":[{"visibility":"on"},{"saturation":-98},{"lightness":41},{"gamma":0.75}]},{"featureType":"road.highway","elementType":"labels","stylers":[{"visibility":"simplified"},{"lightness":20},{"saturation":-60}]},{"featureType":"transit.line","stylers":[{"visibility":"simplified"},{"saturation":-25},{"lightness":35}]},{"featureType":"transit.station","elementType":"labels","stylers":[{"lightness":10},{"saturation":-72}]},{"featureType":"poi","elementType":"geometry","stylers":[{"lightness":15},{"saturation":7}]},{"featureType":"poi.place_of_worship","elementType":"labels","stylers":[{"visibility":"off"}]},{"featureType":"poi.sports_complex","elementType":"labels","stylers":[{"visibility":"off"}]},{"featureType":"road","elementType":"labels","stylers":[{"visibility":"off"}]},{"featureType":"road.local","elementType":"labels","stylers":[{"visibility":"on"},{"saturation":-100},{"lightness":21}]},{"featureType":"road.arterial","elementType":"labels","stylers":[{"visibility":"on"},{"lightness":25}]},{"featureType":"transit.line","stylers":[{"visibility":"off"}]},{"featureType":"poi","elementType":"labels","stylers":[{"saturation":-100},{"lightness":35}]},{}]

Deze woning is Verkocht

Het is helaas niet meer mogelijk om op deze woning te reageren. Op zoek naar een vergelijkbare woning? Neem dan contact met ons op!


Bel 070 350 14 00   info@nelisse.nl